תפקיד מעצב הפנים בשיפוץ בית / דירה
- יסמין ודותן

- 14 בינו׳
- זמן קריאה 2 דקות
עודכן: 4 בפבר׳
תוכניות עבודה המצפן של כל פרויקט.
כאשר אתם יוצאים למסע של שיפוץ מקיף, אתם חולמים על התוצאה הסופית: בית יפה, נוח ומעוצב בדיוק לפי טעמכם. רבים נוטים לחשוב כי תפקיד מעצב הפנים מסתכם בבחירת צבעים, ריהוט וסגנון.
אבל האמת היא שבין החזון לביצוע, ישנו שלב קריטי, לעיתים "אפור" אך הכרחי, שבלעדיו כל הפרויקט עלול לקרוס: הפקת תוכניות עבודה מפורטות ומקצועיות.
אנו בסטודיו space changers רואים בתוכניות העבודה שלנו את המצפן והמפה הטכנית של הפרויקט.
כאן נסביר מדוע תוכניות אלו הן הערובה לשקט הנפשי שלכם, ומדוע הקבלן שלכם פשוט לא יכול לבצע את העבודה כראוי בלעדיהן.
השפה המשותפת והדיוק הסנטימטרי
תכניות העבודה הן ה"דנ"א" של הפרויקט.
הן הופכות רעיונות מופשטים (קונספט עיצובי) להנחיות הנדסיות ברורות
בלי תכניות: הקבלן עובד לפי מה שהוא "מבין" או "חושב" שהמעצב רוצה.
עם תכניות: כל קבלן משנה (אינסטלטור, חשמלאי, רצף, נגר) מקבל הוראות מדויקות המצוינות בסנטימטרים, כגון: גובה הברז מהרצפה, מיקום השקע ביחס לרהיט מתוכנן, והזווית שבה יש לפרוס את האריחים. דיוק זה הוא שיוצר פרויקט מהודק מבחינה טכנית ואסטטית.
מניעת קונפליקטים בין המערכות
אחד האתגרים הגדולים ביותר בשיפוץ הוא תיאום בין המערכות השונות:
תכנית חשמל חייבת להיות מתואמת עם תכנית הנגרות (כדי שהשקעים לא יוסתרו).
תעלות המיזוג חייבות לעבור במקום שלא יפגע בתכנית התאורה או באלמנטים אדריכליים אחרים.
תכנית האינסטלציה חייבת להיות מתואמת עם תכנית הריצוף (כדי שהניקוז יהיה בשיפוע נכון).
אנו יוצרים תכנית קומפילציה (ריכוז) המציגה את כל המערכות זו על גבי זו. זה מאפשר לנו ולקבלן,
לזהות ולפתור קונפליקטים על הנייר, הרבה לפני שהם הופכים לבעיה יקרה באתר.
עמידה בלוחות זמנים (אפקט הדומינו)
כאשר לקבלנים אין תכניות ברורות, הם נאלצים לעצור שוב ושוב, להתקשר, להמתין להחלטות ולפרק
חלקים שנעשו לא נכון.
תכניות מפורטות מאפשרות לקבלן לתכנן את עבודתו בצורה רציפה. לדוגמה, החשמלאי יכול לבצע את העבודה הראשונית מבלי להמתין להחלטה על גובה הברז בכיור האמבטיה, כי הכל כבר מוגדר בתכנית האינסטלציה.
התוצאה: תהליך יעיל יותר, צמצום עיכובים ועמידה טובה יותר בלוחות הזמנים שהוגדרו לפרויקט.
בקרת איכות ואחריות כספית
תכניות העבודה הן הכלי שלכם ושלנו להבטיח שאתם מקבלים בדיוק את מה ששילמתם עליו:
בסיס למכרז: התכניות מלוות במפרט טכני (אומדן כמויות) שמגדיר את כמות, טיב החומרים ורמת הגימור. זה מאפשר השוואה הוגנת בין הצעות מחיר שונות, ומונע מהקבלן להשתמש בחומרים חלופיים וזולים יותר.
כלי פיקוח: כאשר אנו מגיעים לפיקוח עליון באתר, אנו בודקים כל פרט מול התכניות. אם הביצוע אינו תואם לתכנון המקורי, יש לנו כלי ברור המחייב את הקבלן לתקן את הליקוי, מה שמגן עליכם מפני פשרות באיכות.
לסיכום: המומחיות של סטודיו SPACE CHANGERS אינה רק יצירת יופי, אלא עיצוב פנים אחראי. אנו מוודאים שהעיצוב המיוחד שאתם מקבלים, נשען על יסודות טכניים בלתי מתפשרים, המסופקים בתכניות עבודה שהן התחייבות לדיוק, לחיסכון בזמן ולשקט נפשי.
אם אתם יוצאים לשיפוץ, ודאו שאתם עובדים עם סטודיו שמספק לכם את כל סט התוכניות הנדרש. זו ההשקעה הטובה ביותר שתעשו כדי לישון בשקט לאורך כל הדרך.
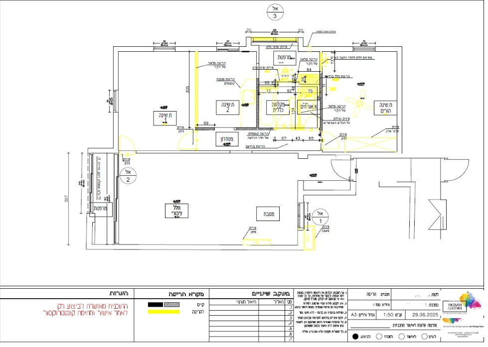
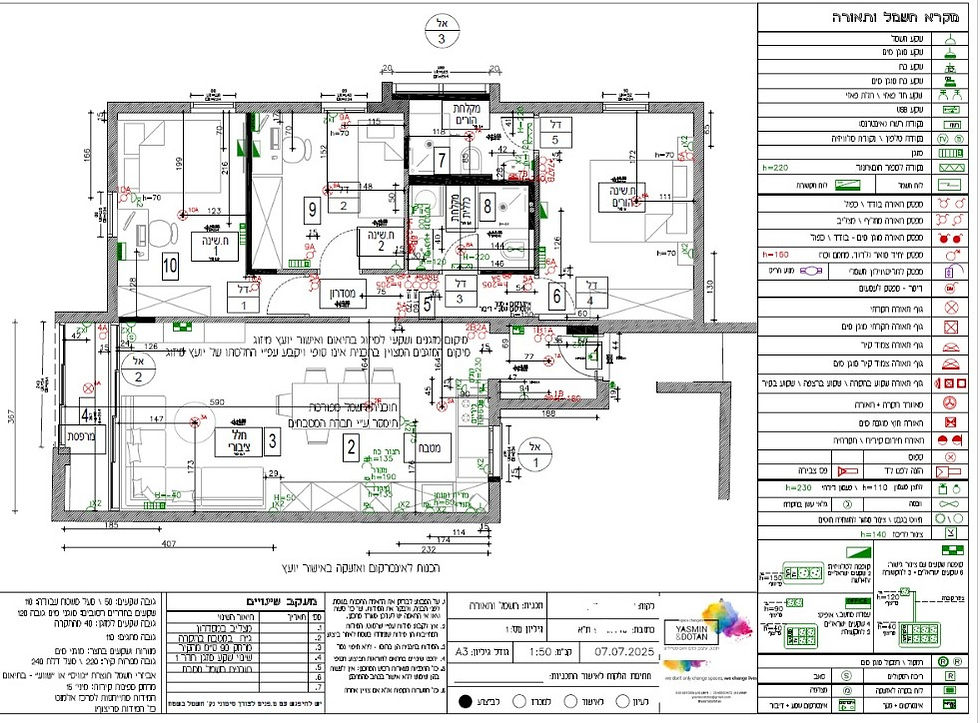
הנה דוגמא לסט תוכניות ואומדן כמויות :



















אם אתם נמצאים לפני שיפוץ וצריכים עזרה עם התוכניות והקבלן -צרו איתנו קשר עוד היום כדי להתחיל את התכנון המדויק של בית החלומות שלכם.








תגובות